Características técnicas

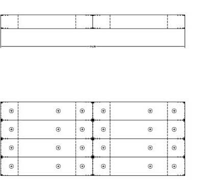
Las pontonas modulares están compuestas por pontones de menor tamaño que son ensamblados con el objetivo de conseguir la superficie deseada. Disponemos de dos tipos de pontones que tienen las siguientes características:

Pontón estándar de 40 pies

Eslora: 12,19 m

Manga: 2,44 m

Puntal: 1,83 m

Presión máxima que puede soportar: 6 t/m2

Compartimentos interiores del pontón: 3

Peso: 10.920 kg

Pontón estándar de 20 pies

Eslora: 6,10 m

Manga: 2,44 m

Puntal: 1,83 m

Presión máxima que puede soportar: 6 t/m2

Compartimentos interiores del pontón: 2

Peso: 6.170 kg

Pontón con spud hidráulico de 20 pies

Eslora: 6,10 m

Manga: 2,44 m

Puntal: 1,83 m

Presión máxima que puede soportar: 6 t/m2

Compartimentos interiores del pontón: 2

Peso: 7.800 kg

Nuestros pontones están diseñados conforme a las normas internacionales de diseño náutico avaladas por Bureau Veritas.

Ensamblaje de los pontones

El ensamblaje de los pontones se realiza en poco tiempo, mediante componentes que se montan en los pontones previamente, constituyendo una conexión “Bolt & Nut” que consta de un perno de alta calidad, un manguito guía para el perno y una tuerca.

El ensamblaje se realiza fácilmente en tierra o en el agua. En el momento en que los pernos están alineados se aprietan los pernos con una llave dinamométrica ajustada a 350 kN. Este método de ensamblaje está ampliamente testado y no deja costuras perceptibles, pudiendo absorber altas cargas dinámicas.

Especificaciones principales:

Pretensado de montaje: 350 kN

Esfuerzo de tracción máximo admisible: 400 kN

Esfuerzo de tracción recomendado: 200 kN

Esfuerzo cortante máximo admisible: 35 kN

Basta para realizar el montaje con un mecánico montador y un ayudante.

Los pontones pueden trasladarse por tierra en plataformas en un número de dos unidades/plataforma para los pontones de 40 pies.

El sistema de pontona modular permite adaptarse a diferentes tamaños dada su naturaleza ampliable, contando por tanto con una gran capacidad de adaptación a las diferentes necesidades de los clientes.

Equipo actuales

La empresa dispone de dos pontonas modulares, adaptables a otras configuraciones cuyas características son las siguientes:

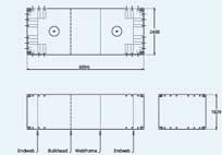
Pontona principal dotada de 2 spuds hidráulicos

Características

Eslora: 24,38m

Manga: 17,07m

Puntal: 1,83m

Capacidad: 450 Tn

Spuds: Diam. 762mm x 18m

Clase: DNV-GL o Bureau Veritas

Notación: Aguas interiores, aguas abrigadas, zonas costeras.

Pontona auxiliar

Características

Eslora: 24,38m

Manga: 9,75m

Puntal: 1,83m

Capacidad: 260 Tn

Clase: DNV-GL o Bureau Veritas

Notación: Aguas interiores, aguas abrigadas, zonas costeras.

Ventajas de las pontonas modulares y empleo

Dos de las principales ventajas de las pontonas modulares frente a las convencionales es su facilidad de transporte y versatilidad para adaptarse a las diferentes necesidades de equipos que pueden ser usados sobre ellas:

Retroexcavadoras de gran tamaño para dragados y demoliciones.

Grúas de gran tonelaje para colocación de bloques, desmontaje de elementos o recuperación de elementos sumergidos.

Equipos para la ejecución de campañas geotécnicas (al estar dotada de spud)

Transporte de elementos por vía marítima.

En definitiva, cualquier elemento que en condiciones normales es terrestre puede adoptar una configuración marítima, gracias al empleo de la pontona.

Es destacable el uso de los spud como elementos que permiten la ejecución de trabajos geotécnicos, que de otra forma serían de muy difícil ejecución. Los spuds permiten “clavar” la pontona al fondo marino logrando de esa forma su inmovilidad.

Además presentan indudables ventajas en la obtención de rendimientos mejorados en otras tareas de precisión como pueden ser la de colocación de bloques o recuperación de piezas sumergidas o emergidas de gran tonelaje.

descargar PDF

¿Le gustaría saber cómo pueden adaptarse las pontonas modulares a su proyecto ?

Póngase en contacto con nosotros. Le ayudaremos a encontrar la solución que mejor se adapte a su situación.

quiero más información

Alquile ahora mismo nuestras pontonas modulares

Rellene este formulario y reserve directamente las fechas deseadas.

Le responderemos en la mayor brevedad posible con una oferta personalizada.

Datos personales

1

Elija fechas

2

¿Dudas?

3

¿Tiene observaciones? ¿Preguntas técnicas? Escriba su mensaje, por favor:

¿Prefiere llamarnos?

Telf | 871599964

Fax | 971281578

info@pontonas.es

Gremi Fusters, 33, Local 7 bajos 07009 Polígono Son Castelló, Palma de Mallorca, Illes Balears

Info Cookies

Utilizamos cookies de terceros para analizar la actividad de nuestra web con la finalidad de mejorar su contenido. Clica AQUÍ para más información. Puedes aceptar todas las cookies pulsando el botón “Aceptar”. Para rechazar el uso de cookies clica el botón "Rechazar". Rechazar Aceptar